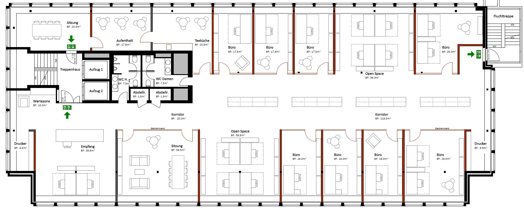
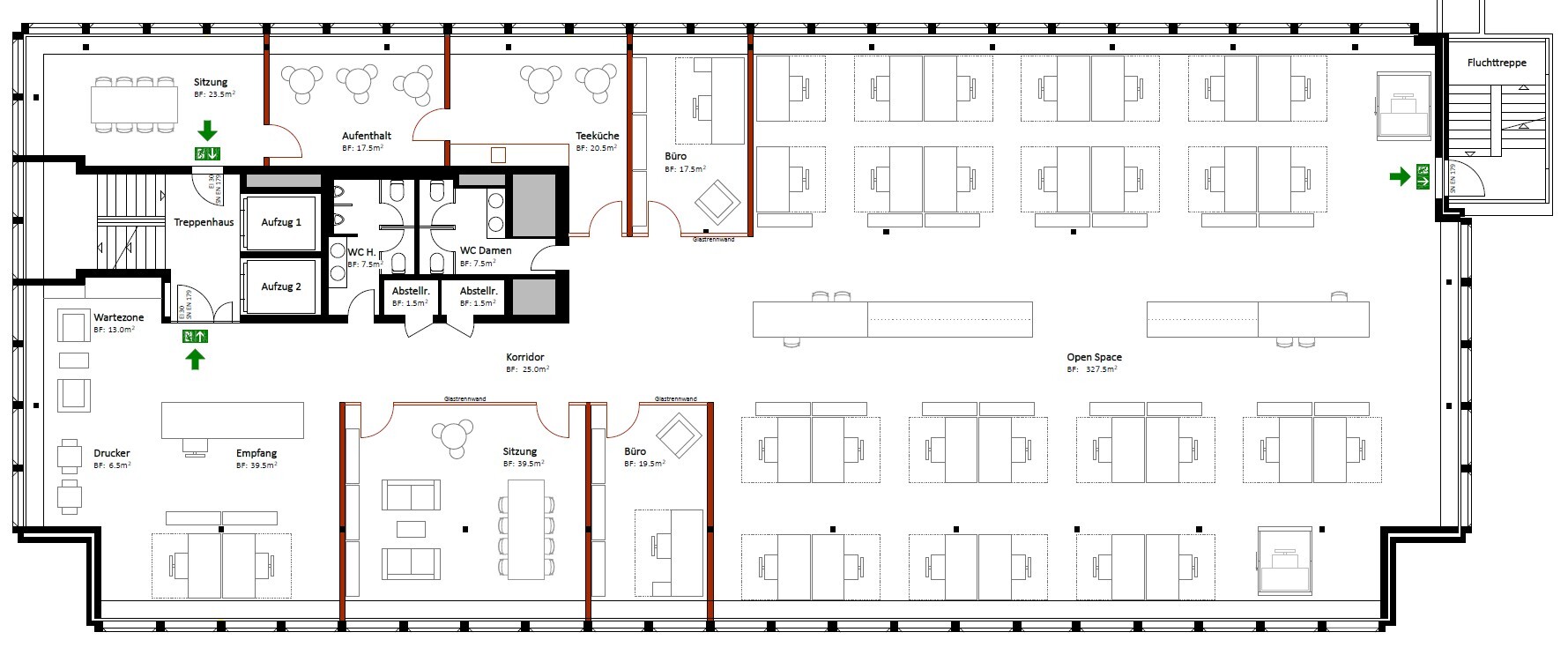
Beschreibung
In Gehdistanz zum Bahnhof Tiefenbrunnen steht im 1. Obergeschoss eine moderne Bürofläche von ca. 590 m² zur Verfügung – nach Vereinbarung und flexibel als Open Space oder mit Klein- und Einzelbüros ausgebaut.
Die Fläche wird zu untenstehenden Beschreibung und gemäss Ihren Präferenzen ausgestattet:
Ausbau
- Boden: Teppichmuster zur freien Auswahl (Budget CHF 80/m², verlegt)
- Belüftung und Kühlung bis 19 °C (Brüstungsklimageräte)
- Raumstruktur: Open Space (netto CHF 500/m² p.a.) oder Klein- und Einzelbüros (netto CHF 520/m² p.a.) – gemäss Planunterlagen
- Ausgebaute Nasszellen im Mietobjekt (neu 2024)
- Ausgebaute Teeküche im Mietobjekt (neu 2024)
- Duschen und Serverraum im UG zur Mitbenutzung
Tiefgaragenplätze sind für CHF 360 pro Monat optional verfügbar.
Die Akonto-Nebenkosten belaufen sich auf CHF 60/m² p.a.
Lage
Durch die zurückversetzte Lage von den Hauptstrassen entsteht eine ruhige, hofähnliche Atmosphäre. Die um 1988 erbaute Liegenschaft befindet sich in Gehdistanz zum Bahnhof Tiefenbrunnen, von dem aus der Zürcher Hauptbahnhof mit der S-Bahn in wenigen Minuten erreichbar ist. Die nahegelegene Tram- und Bushaltestelle «Wildbachstrasse» bietet eine optimale Anbindung an die Hotspots von Zürich. Im umliegenden Quartier finden sich zahlreiche attraktive Verpflegungs- und Einkaufsmöglichkeiten.
Gerne zeigen wir Ihnen dieses aussergewöhnliche Objekt bei einem persönlichen Besichtigungstermin vor Ort. Wir freuen uns auf Ihre Kontaktaufnahme!
Eigenschaften
Umgebung
- Geschäfte
- Restaurant(s)
- Bahnhof
- Bushaltestelle
- Tramhaltestelle
Aussenbereich
- Öffentlicher Parkplatz
- Parkplatz
- Garage
Innenbereich
- Behindertengerecht
- Einstellhallenplatz
- Tiefgarage
Ausstattung
- Photovoltaik-Paneele
- Glasfaser
- Internetanschluss
- Verkabelungskanäle
- Elektrische Rollläden
- Lüftung
Boden
- Teppichboden
Aussicht
- See







